Trilocale in vendita

Campegine, via Matteotti - Case Cocconi
€ 114.000
3 locali 3 locali
67 Mq 67 Mq
1 bagno 1 bagno

Trilocale in vendita

Campegine, via Matteotti - Case Cocconi

Descrizione annuncio

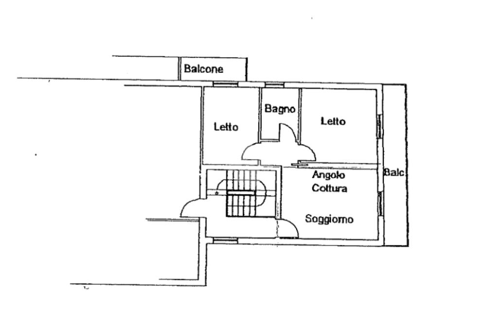
CAMPEGINE - TRILOCALE A CASE COCCONI.

Siamo a Case Cocconi, leggermente defilati rispetto al centro del paese e proponiamo una soluzione di recente costruzione, precisamente del 2003.

L'immobile è posto al 1° piano di una palazzina esteticamente molto gradevole, abitata da poche famiglie e con bassissime spese condominiali, limitate solo all'energia elettrica delle scale comuni.

Al piano terra sono presenti i bassi servizi, l'appartamento nello specifico predispone di un comodo garage ma non mancano i posti auto nelle immediate vicinanze.

Si tratta di un trilocale con doppia esposizione ad angolo, sud est, pertanto è ben illuminato in tutte le fasi della giornata.

La composizione è la classica del trilocale, entriamo nel soggiorno con angolo cottura, disimpegno il quale si affaccia su un ampio balcone.

Attraverso il disimpegno raggiungiamo la zona notte dove troviamo una camera matrimoniale, anch'essa con affaccio sul balcone ed una camera singola con proprio sfogo esterno, oltre al bagno con doccia.

L'immobile gode di riscaldamento autonomo e di impianto d'aria condizionata, ha inoltre porta blindata e zanzariere.

Si tratta di un appartamento praticamente pronto all'uso, in buone condizioni.

PER MAGGIORI INFORMAZIONI O PER FISSARE UNA VISITA PRIVATA CHIAMACI AL 0522.902044

Mostra tutto

Nelle vicinanze

Trasporto pubblico Trasporto pubblico
Trasporto pubblico
2,6 Km
Scuole Scuole
Scuole
1,1 Km
Farmacia Farmacia
Farmacia
870 m
Supermercati Supermercati
Supermercati
610 m
COOP
1,2 Km
Negozi Negozi
OK SIGMA
670 m
Bar Bar
Bar
570 m
Laghi Val Pratonera
2,8 Km
Ristoranti Ristoranti
Ristorante Il Porto
2,2 Km
Ristoranti
2,3 Km
Mostra tutto

Caratteristiche

Rif.:
61163189
Piano:
1 di 2 (Piano basso)
Box:
1
Balconi:
2
Camere da letto:
2
Arredamento:
Assente
Mostra tutto
Prezzo Prezzo
€ 114.000
Rata mutuo Rata mutuo
€ 537 / mese
Spese annue Spese annue
€ 100
Proponi il tuo prezzoProponi il tuo prezzo

Classe Energetica

C
C
C
C
C
C
C
C
C
EP globale non rinnovabile:
191.37 kW h/m² anno
EP globale rinnovabile:
191.37 kW h/m² anno
EP invernale del fabbricato:
EP estiva del fabbricato:
Riscaldamento:
Autonomo
Tipo impianto:
A radiatori
Tipo alimentazione:
Metano

Ti interessa visionare l'immobile?

Fissa un appuntamento  Fissa un appuntamento

Richiedi informazioni

Clicca su Leggi per aprire l'informativa
* Questi campi sono obbligatori

Calcola il tuo mutuo

Semplice e senza impegno
Anticipo

( % )
Mutuo

( % )

pochi semplici passi

inserisci i tuoi dati
Questionario completato
Grazie per aver richiesto un appuntamento senza impegno con un nostro Consulente del Credito e Assicurativo.

Hai inserito correttamente tutti i dati necessari e a breve riceverai una e-mail con un link da convalidare per inviare i tuoi dati.
Affiliato
Studio Beta Srl
Via Roma, 9 42049 Sant'Ilario D'Enza (RE)

Il nostro staff


  • Romina Ornela Lonardi
    Collaboratrice

  • Piero Ruffino
    Affiliato

  • Silvia D'Anversa
    Coordinatrice

  • Pasqua Giampalmo
    Collaboratrice

  • Luigi Pilato
    Collaboratore

  • Massimiliano Ruffino
    Responsabile

  • Mauro Razzoli
    Collaboratore
Via Roma, 9 42049 Sant'Ilario D'Enza (RE)
Zona: S.Ilario - Calerno
Mostra su mappa
Orari: Da Lunedì a Venerdì: 09.00-13.00 e 15.00-20.00 Sabato: 09.00-13.00 e 15.00-18.00
Affiliato
Studio Beta Srl
Via Roma, 9 42049 Sant'Ilario D'Enza (RE)

2026 Tecnocasa Franchising S.p.A. - P. IVA 08365160152 - Via Monte Bianco 60/A 20089 Rozzano (MI). Ogni agenzia ha un proprio titolare ed è autonoma. Privacy policy | Policy utilizzo | Cookie policy