Casa indipendente in vendita

Campegine, via Matteotti
Informazioni in agenzia
6 locali 6 locali
290 Mq 290 Mq
2 bagni 2 bagni

Casa indipendente in vendita

Campegine, via Matteotti

Descrizione annuncio

CAMPEGINE- CASA SINGOLA RISTRUTTURATA A NUOVO.

Proponiamo in vendita una splendida casa singola situata all’interno di un ampio lotto di terreno privato.

L’immobile è libero sui quattro lati e circondato da un’area esterna curata nei dettagli: una parte è pavimentata a cortile, mentre l’altra è dedicata al verde, con un prato all’inglese che conferisce eleganza e un senso di ordine all’intera proprietà.

La casa si presenta pari al nuovo poiché è stata oggetto di una ristrutturazione integrale, sia interna che esterna, ultimata nel 2022. L’intervento ha interessato ogni aspetto dell’immobile, dagli impianti alle finiture, con una particolare attenzione alla qualità dei materiali utilizzati e a un design che coniuga modernità e comfort.

Grande importanza è stata data anche al tema dell’efficienza energetica: la presenza dell’impianto fotovoltaico con batterie di accumulo da 10 kW e l’appartenenza alla classe energetica A1 testimoniano la volontà di offrire una casa al passo con le più recenti soluzioni tecnologiche.

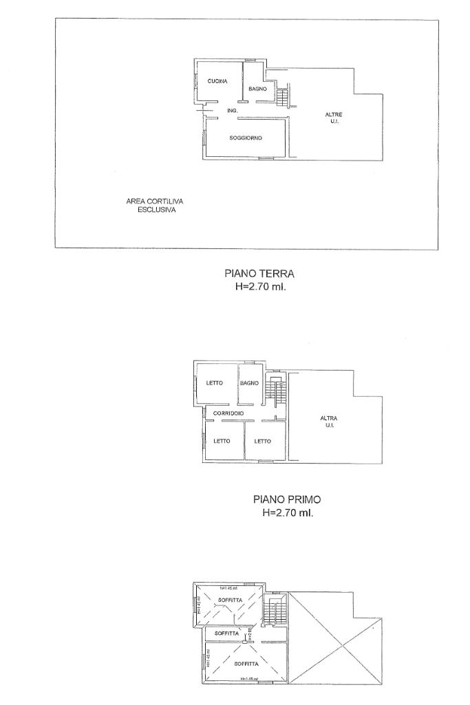
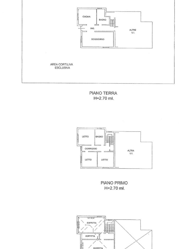
L’abitazione si sviluppa principalmente su due piani, ai quali si aggiunge un sottotetto sfruttabile.

Al piano terra un ingresso centrale ci accoglie e connette gli ambienti della zona giorno. Sulla destra si apre una luminosa sala doppia, ampia e confortevole, ideale per ospitare sia l’area divani sia la zona pranzo. Sulla sinistra si trova una cucina abitabile con penisola, moderna e funzionale, concepita per vivere al meglio la convivialità quotidiana.

Sempre sullo stesso livello è presente un bagno finestrato dotato di doccia, comodo e pratico.

Salendo al primo piano si accede alla zona notte, qui troviamo tre camere da letto matrimoniali, tutte di ottime dimensioni e caratterizzate da grande luminosità naturale.

Sullo stesso piano è presente un secondo bagno completo, dotato di vasca, ideale per chi desidera un momento di relax e benessere al termine della giornata.

La proprietà dispone inoltre di utili e preziosi bassi servizi che ampliano la funzionalità della soluzione. Una zona dedicata a taverna offre uno spazio versatile, perfetto come area ricreativa o zona hobby.

È presente anche una lavanderia, comoda e ben organizzata, oltre ad un’autorimessa doppia che permette di parcheggiare due autovetture o di avere ulteriore spazio per riporre attrezzature o materiali.

Si tratta di una soluzione abitativa moderna e confortevole, rinnovata con cura e attenzione ai dettagli, ideale per chi desidera vivere una casa indipendente efficiente, accogliente e pronta da abitare.

PER MAGGIORI INFORMAZIONI O PER FISSARE UNA VISITA PRIVATA CHIAMACI AL 0522.902044

Mostra tutto

Nelle vicinanze

Trasporto pubblico Trasporto pubblico
Trasporto pubblico
2,6 Km
Scuole Scuole
Scuole
1,1 Km
Farmacia Farmacia
Farmacia
870 m
Supermercati Supermercati
Supermercati
610 m
COOP
1,2 Km
Negozi Negozi
OK SIGMA
670 m
Bar Bar
Bar
570 m
Laghi Val Pratonera
2,8 Km
Ristoranti Ristoranti
Ristorante Il Porto
2,2 Km
Ristoranti
2,3 Km
Mostra tutto

Caratteristiche

Rif.:
61141914
Piano:
Su più livelli di 2
Totale piani:
2
Box:
2
Posti auto:
4
Camere da letto:
3
Mostra tutto
Prezzo Prezzo
Informazioni in agenzia
Spese annue Spese annue
€ 0
Proponi il tuo prezzoProponi il tuo prezzo

Classe Energetica

A1
A1
A1
A1
A1
A1
A1
A1
A1
EP globale non rinnovabile:
72.24 kW h/m² anno
EP globale rinnovabile:
72.24 kW h/m² anno
EP invernale del fabbricato:
EP estiva del fabbricato:
Anno di costruzione:
1970
Riscaldamento:
Autonomo
Tipo impianto:
A pavimento
Tipo alimentazione:
Metano

Ti interessa visionare l'immobile?

Fissa un appuntamento  Fissa un appuntamento

Richiedi informazioni

Clicca su Leggi per aprire l'informativa
* Questi campi sono obbligatori
Affiliato
Studio Beta Srl
Via Roma, 9 42049 Sant'Ilario D'Enza (RE)

Il nostro staff


  • Romina Ornela Lonardi
    Collaboratrice

  • Piero Ruffino
    Affiliato

  • Silvia D'Anversa
    Coordinatrice

  • Pasqua Giampalmo
    Collaboratrice

  • Luigi Pilato
    Collaboratore

  • Massimiliano Ruffino
    Collaboratore

  • Mauro Razzoli
    Collaboratore
Via Roma, 9 42049 Sant'Ilario D'Enza (RE)
Zona: S.Ilario - Calerno
Mostra su mappa
Orari: Da Lunedì a Venerdì: 09.00-13.00 e 15.00-20.00 Sabato: 09.00-13.00 e 15.00-18.00
Affiliato
Studio Beta Srl
Via Roma, 9 42049 Sant'Ilario D'Enza (RE)

2025 Tecnocasa Franchising S.p.A. - P. IVA 08365160152 - Via Monte Bianco 60/A 20089 Rozzano (MI). Ogni agenzia ha un proprio titolare ed è autonoma. Privacy policy | Policy utilizzo | Cookie policy