Villa a schiera in vendita

Campegine, via Cavatorti
€ 239.000
5 locali 5 locali
200 Mq 200 Mq
2 bagni 2 bagni

Villa a schiera in vendita

Campegine, via Cavatorti

Descrizione annuncio

CAMPEGINE- VILLETTA A SCHIERA CON PORTICO ABITABILE E GIARDINO CON PISCINA.

Siamo a Campegine in zona Razza, all'interno di un gradevole contesto residenziale edificato nel 2004, proponiamo in vendita una splendida villetta a schiera, ideale per chi cerca comodità, stile e spazi pensati per la famiglia.

La casa fa parte di una schiera di poche unità abitatice, tutte ordinate e ben mantenute, e si distingue per il suo ottimo stato conservativo e per la cura dei dettagli, oltre che per la posizone tranquilla, siamo infatti immersi nel verde.

L’ingresso è indipendente, attraverso un giardino privato curato nei minimi dettagli si accede alla zona giorno passando per un portico vetrato di recentissima realizzazione, una vera chicca, uno spazio elegante e funzionale, riscaldato, climatizzato, con doppio volume e chiuso da ampie vetrate, perfetto da vivere in tutte le stagioni.

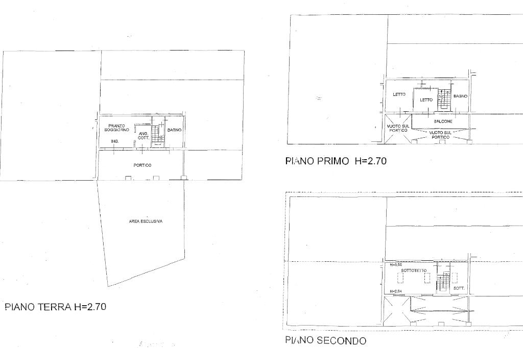
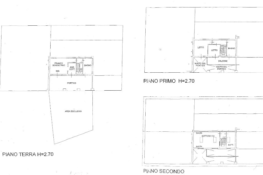
Entrando al piano terra troviamo la zona giorno ovvero la sala con zona cottura semi a vista, pensata per coniugare convivialità e praticità, oltre ad un bagno-lavanderia ed un piccolo ripostiglio nel sottoscala.

Al primo piano si sviluppa la zona notte composta da una camera matrimoniale, una camera singola ed un secondo bagno finestrato con vasca. Tutti gli ambienti si affacciano su una piacevole loggia coperta, anch'essa molto spaziosa e funzionale.

Salendo ancora si accede al sottotetto sfruttabile attualmente adibito a zona living ma utilizzabile come terza camera, ufficio, insomma una stanza pluriuso dotata di ripostiglio (eventualmente si può ricavare il terzo bagno).

Il giardino privato è uno degli elementi che rendono ulteriormente appetibile questa proposta, oltre ad essere ben curato e riservato, ospita una piscina fuori terra con idromassaggio, nuoto controcorrente e acqua riscaldabile, perfetta per rilassarsi anche nelle stagioni meno calde.

Completa l'oggetto la casetta in legno per gli attrezzi ed il garage di proprietà.

PER MAGGIORI INFORMAZIONI O PER FISSARE UNA VISITA PRIVATA CHIAMACI AL 0522.902044

Mostra tutto

Nelle vicinanze

Trasporto pubblico Trasporto pubblico
Trasporto pubblico
110 m
Scuole Scuole
Scuole
1,8 Km
Scuola dell'infanzia statale Bruno Ciari
2,7 Km
Scuola primaria statale Paola Valeriani
2,9 Km
Farmacia Farmacia
Farmacia
2,1 Km
Farmacie Comunali Riunite
2,9 Km
Supermercati Supermercati
COOP
1,9 Km
Supermercati
2,2 Km
Negozi Negozi
OK SIGMA
2,2 Km
Bar Bar
Bar
2,2 Km
Ristoranti Ristoranti
Ristoranti
1,9 Km
Ristorante Il Porto
2,0 Km
Mostra tutto

Caratteristiche

Rif.:
61114978
Piano:
Su più livelli di 2
Totale piani:
2
Box:
1
Balconi:
1
Camere da letto:
2
Mostra tutto
Prezzo Prezzo
€ 239.000
Rata mutuo Rata mutuo
€ 1.095 / mese
Spese annue Spese annue
€ 200
Proponi il tuo prezzoProponi il tuo prezzo

Classe Energetica

E
E
E
E
E
E
E
E
E
EP globale non rinnovabile:
185.31 kW h/m² anno
EP globale rinnovabile:
185.31 kW h/m² anno
EP invernale del fabbricato:
EP estiva del fabbricato:
Anno di costruzione:
2004
Riscaldamento:
Autonomo
Tipo impianto:
A radiatori
Tipo alimentazione:
Metano

Ti interessa visionare l'immobile?

Fissa un appuntamento  Fissa un appuntamento

Richiedi informazioni

* Questi campi sono obbligatori

Calcola il tuo mutuo

Semplice e senza impegno
Anticipo

( % )
Mutuo

( % )

pochi semplici passi

inserisci i tuoi dati
Questionario completato
Grazie per aver richiesto un appuntamento senza impegno con un nostro Consulente del Credito e Assicurativo.

Hai inserito correttamente tutti i dati necessari e a breve riceverai una e-mail con un link da convalidare per inviare i tuoi dati.
Affiliato
Studio Beta Srl
Via Roma, 9 42049 Sant'Ilario D'Enza (RE)

Il nostro staff


  • Romina Ornela Lonardi
    Collaboratrice

  • Piero Ruffino
    Affiliato

  • Silvia D'Anversa
    Coordinatrice

  • Pasqua Giampalmo
    Collaboratrice

  • Luigi Pilato
    Collaboratore

  • Massimiliano Ruffino
    Collaboratore

  • Mauro Razzoli
    Collaboratore
Via Roma, 9 42049 Sant'Ilario D'Enza (RE)
Zona: S.Ilario - Calerno
Mostra su mappa
Orari: Da Lunedì a Venerdì: 09.00-13.00 e 15.00-20.00 Sabato: 09.00-13.00 e 15.00-18.00
Affiliato
Studio Beta Srl
Via Roma, 9 42049 Sant'Ilario D'Enza (RE)

2025 Tecnocasa Franchising S.p.A. - P. IVA 08365160152 - Via Monte Bianco 60/A 20089 Rozzano (MI). Ogni agenzia ha un proprio titolare ed è autonoma. Privacy policy | Policy utilizzo | Cookie policy