Bifamiliare in vendita

Campegine, via Enrico Fermi - Caprara
€ 339.000
8 locali 8 locali
220 Mq 220 Mq
2 bagni 2 bagni

Bifamiliare in vendita

Campegine, via Enrico Fermi - Caprara

Descrizione annuncio

CAMPEGINE- BIFAMILIARE IN CONTESTO DI TRE UNITA' COMPOSTA DA DUE QUADRILOCALI INDIPENDENTI.

Siamo precisamente a Caprara, in una zona tranquilla, proponiamo una soluzione semi indipendente ideale per chi cerca spazi comodi e autonomia.

Si tratta di una bifamiliare inserita in un contesto di sole tre unità, ristrutturata completamente nel 2008 sia internamente che all’esterno, la quale si presenta in ottime condizioni, pronta per essere abitata senza alcun intervento.

La proprietà è composta da due appartamenti distinti, ciascuno con ingresso indipendente e impianti separati, ma accomunati da un ingresso carrabile condiviso e da un’area esterna in parte piantumata ed in parte adibita a verde, uno spazio che può essere facilmente suddiviso per garantire a ciascuna unità il proprio angolo privato di giardino o zona relax.

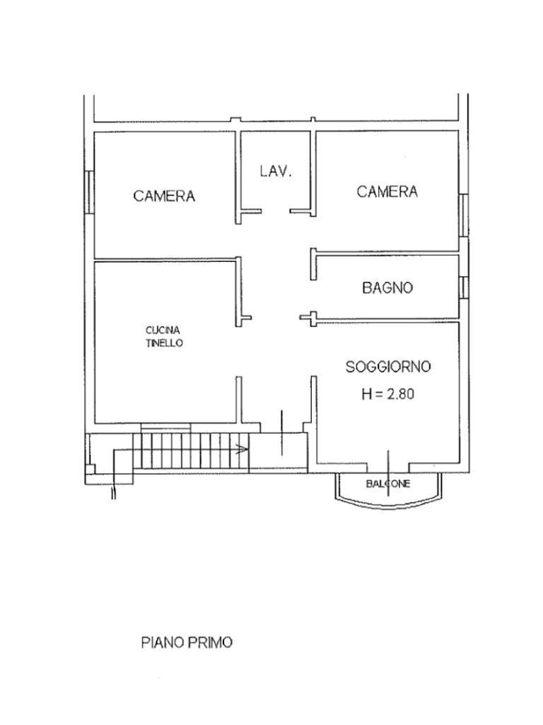
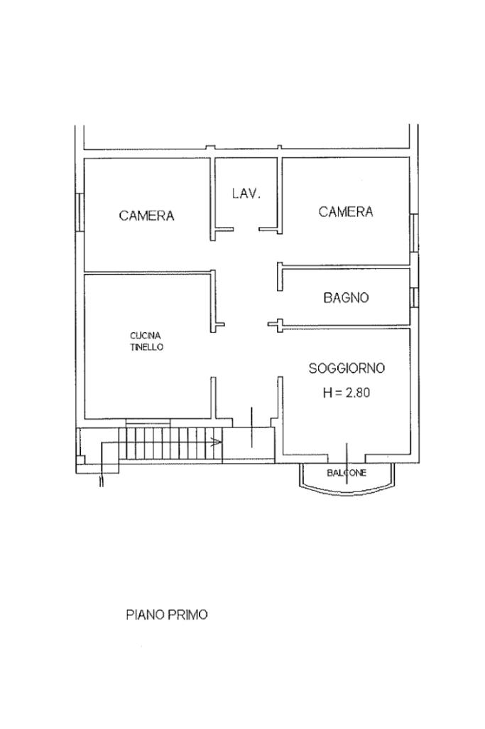
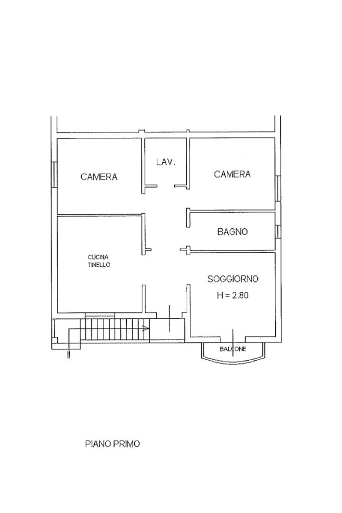
PIANO TERRA: questa unità si apre su un ingresso che conduce ad un soggiorno luminoso e accogliente, una cucina semi abitabile separata, due camere da letto matrimoniali, un bagno finestrato con doccia ed una comoda lavanderia.

PRIMO PIANO: troviamo la seconda abitazione composta da un soggiorno con accesso al balcone, una cucina ampia dove è possibile pranzare comodamente in famiglia, due camere matrimoniali, un bagno anch’esso finestrato e dotato di doccia ed una lavanderia.

Entrambe le unità sono caratterizzate da ambienti ben distribuiti, ariosi e funzionali, adatti a soddisfare le esigenze di famiglie come genitori e figli che desiderano vivere vicini ma in completa autonomia oppure per due nuclei familiari diversi.

La parte esterna, oltre al verde, offre la possibilità di parcheggiare più auto all’interno del cortile, dove è presente anche un posto auto coperto.

PER MAGGIORI INFORMAZIONI O PER FISSARE UNA VISITA PRIVATA CHIAMACI AL 0522.902044

Mostra tutto

Nelle vicinanze

Trasporto pubblico Trasporto pubblico
Trasporto pubblico
2,0 Km
Scuole Scuole
Scuole
1,1 Km
Farmacia Farmacia
Farmacia
1,3 Km
Supermercati Supermercati
COOP
1,0 Km
Supermercati
1,6 Km
Negozi Negozi
OK SIGMA
1,5 Km
Bar Bar
Bar
1,7 Km
Ristoranti Ristoranti
Ristorante Il Porto
100 m
Ristoranti
210 m
Mostra tutto

Caratteristiche

Rif.:
61119140
Piano:
Su più livelli di 2
Totale piani:
2
Posti auto:
2
Balconi:
1
Camere da letto:
4
Mostra tutto
Prezzo Prezzo
€ 339.000
Rata mutuo Rata mutuo
€ 1.598 / mese
Spese annue Spese annue
€ 0
Proponi il tuo prezzoProponi il tuo prezzo

Classe Energetica

E
E
E
E
E
E
E
E
E
EP globale non rinnovabile:
200.00 kW h/m² anno
EP globale rinnovabile:
200.00 kW h/m² anno
EP invernale del fabbricato:
EP estiva del fabbricato:
Anno di costruzione:
1967
Riscaldamento:
Autonomo
Tipo impianto:
A radiatori
Tipo alimentazione:
Metano

Ti interessa visionare l'immobile?

Fissa un appuntamento  Fissa un appuntamento

Richiedi informazioni

Clicca su Leggi per aprire l'informativa
* Questi campi sono obbligatori

Calcola il tuo mutuo

Semplice e senza impegno
Anticipo

( % )
Mutuo

( % )

pochi semplici passi

inserisci i tuoi dati
Questionario completato
Grazie per aver richiesto un appuntamento senza impegno con un nostro Consulente del Credito e Assicurativo.

Hai inserito correttamente tutti i dati necessari e a breve riceverai una e-mail con un link da convalidare per inviare i tuoi dati.
Affiliato
Studio Beta Srl
Via Roma, 9 42049 Sant'Ilario D'Enza (RE)

Il nostro staff


  • Romina Ornela Lonardi
    Collaboratrice

  • Piero Ruffino
    Affiliato

  • Silvia D'Anversa
    Coordinatrice

  • Pasqua Giampalmo
    Collaboratrice

  • Luigi Pilato
    Collaboratore

  • Massimiliano Ruffino
    Collaboratore

  • Mauro Razzoli
    Collaboratore
Via Roma, 9 42049 Sant'Ilario D'Enza (RE)
Zona: S.Ilario - Calerno
Mostra su mappa
Orari: Da Lunedì a Venerdì: 09.00-13.00 e 15.00-20.00 Sabato: 09.00-13.00 e 15.00-18.00
Affiliato
Studio Beta Srl
Via Roma, 9 42049 Sant'Ilario D'Enza (RE)

2025 Tecnocasa Franchising S.p.A. - P. IVA 08365160152 - Via Monte Bianco 60/A 20089 Rozzano (MI). Ogni agenzia ha un proprio titolare ed è autonoma. Privacy policy | Policy utilizzo | Cookie policy