Bilocale in vendita

Gattatico, via G. da Gattatico - Taneto
€ 75.000
2 locali 2 locali
45 Mq 45 Mq
1 bagno 1 bagno

Bilocale in vendita

Gattatico, via G. da Gattatico - Taneto

Descrizione annuncio

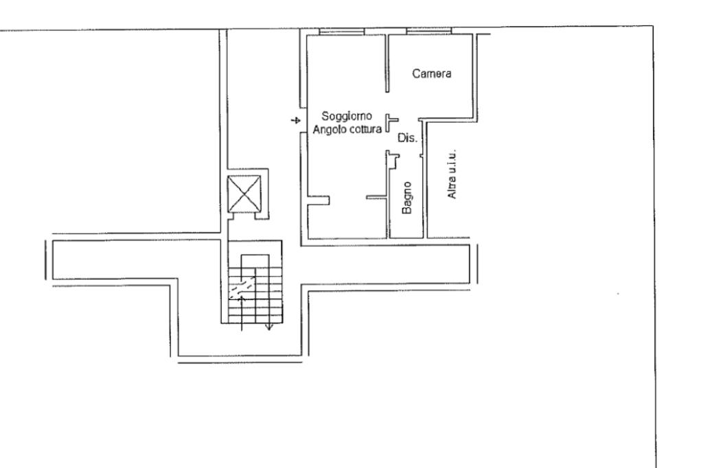
TANETO - BILOCALE CON CANTINA.

Siamo a Taneto, in zona Bertana, a due passi da supermercato, farmacia e i servizi che il paese offre.

Proponiamo in vendita un bilocale situato al terzo piano di un contesto servito da ascensore.

Il taglio è quello classico, ovvero ingresso nel soggiorno, qui abbiamo un cucinotto semi a vista. Vi è una camera matrimoniale e bagno con antibagno.

Completa l'immobile una cantina, ideale per lo spazio di deposito.

PER MAGGIORI INFORMAZIONI O PER FISSARE UNA VISITA PRIVATA CHIAMACI AL 0522.902044

Mostra tutto

Nelle vicinanze

Trasporto pubblico Trasporto pubblico
Sant'Ilario d'Enza
Sant'Ilario d'Enza
530 m
Trasporto pubblico
130 m
Fermata Forum
Fermata Forum
1,0 Km
Ricariche auto elettriche Ricariche auto elettriche
Sant'Ilario Gramsci | Enelx
850 m
EnelX EVA+ Comune Di Sant'Ilario D'Enza
1,1 Km
CONAD SUPERSTORE SANT'ILARIO | ENELX
2,4 Km
Scuole Scuole
Scuole
390 m
Scuola secondaria di primo grado "Leonardo da Vinci"
930 m
Ipsia Galvani
1,1 Km
Area Scolastica
1,5 Km
Scuola Elementare "Carlo Collodi"
1,6 Km
Farmacia Farmacia
Farmacia Ziroldi
310 m
Febbranti Ivano e Paolo
1,1 Km
Farmacia comunale
1,1 Km
Parafarmacia Conad
2,5 Km
Supermercati Supermercati
Supermercato Conad
280 m
COOP
950 m
Famila
1,3 Km
Conad
2,5 Km
Supermercati
2,9 Km
Negozi Negozi
Negozi
760 m
Bar Bar
Bar
1,0 Km
Bar Centrale
1,0 Km
Ristoranti Ristoranti
Il Ghiottone
230 m
Ristoranti
280 m
Prater
1,0 Km
IL Moretto
2,8 Km
Mostra tutto

Caratteristiche

Rif.:
61121311
Piano:
3 di 4 con ascensore (Piano alto)
Camere da letto:
1
Arredamento:
Assente
Condizionamento:
Autonomo
Ascensore:
Mostra tutto
Prezzo Prezzo
€ 75.000
Rata mutuo Rata mutuo
€ 354 / mese
Spese annue Spese annue
€ 600
Proponi il tuo prezzoProponi il tuo prezzo

Classe Energetica

G
G
G
G
G
G
G
G
G
EP globale non rinnovabile:
230.00 kW h/m² anno
EP globale rinnovabile:
230.00 kW h/m² anno
EP invernale del fabbricato:
EP estiva del fabbricato:
Anno di costruzione:
1980
Riscaldamento:
Autonomo
Tipo impianto:
A radiatori
Tipo alimentazione:
Metano

Ti interessa visionare l'immobile?

Fissa un appuntamento  Fissa un appuntamento

Richiedi informazioni

Clicca su Leggi per aprire l'informativa
* Questi campi sono obbligatori

Calcola il tuo mutuo

Semplice e senza impegno
Anticipo

( % )
Mutuo

( % )

pochi semplici passi

inserisci i tuoi dati
Questionario completato
Grazie per aver richiesto un appuntamento senza impegno con un nostro Consulente del Credito e Assicurativo.

Hai inserito correttamente tutti i dati necessari e a breve riceverai una e-mail con un link da convalidare per inviare i tuoi dati.
Affiliato
Studio Beta Srl
Via Roma, 9 42049 Sant'Ilario D'Enza (RE)

Il nostro staff


  • Romina Ornela Lonardi
    Collaboratrice

  • Piero Ruffino
    Affiliato

  • Silvia D'Anversa
    Coordinatrice

  • Pasqua Giampalmo
    Collaboratrice

  • Luigi Pilato
    Collaboratore

  • Massimiliano Ruffino
    Collaboratore

  • Mauro Razzoli
    Collaboratore
Via Roma, 9 42049 Sant'Ilario D'Enza (RE)
Zona: S.Ilario - Calerno
Mostra su mappa
Orari: Da Lunedì a Venerdì: 09.00-13.00 e 15.00-20.00 Sabato: 09.00-13.00 e 15.00-18.00
Affiliato
Studio Beta Srl
Via Roma, 9 42049 Sant'Ilario D'Enza (RE)

2025 Tecnocasa Franchising S.p.A. - P. IVA 08365160152 - Via Monte Bianco 60/A 20089 Rozzano (MI). Ogni agenzia ha un proprio titolare ed è autonoma. Privacy policy | Policy utilizzo | Cookie policy