5 locali in vendita

Gattatico, via Manzoni - Praticello
€ 172.000
5 locali 5 locali
123 Mq 123 Mq
1 bagno 1 bagno

5 locali in vendita

Gattatico, via Manzoni - Praticello

Descrizione annuncio

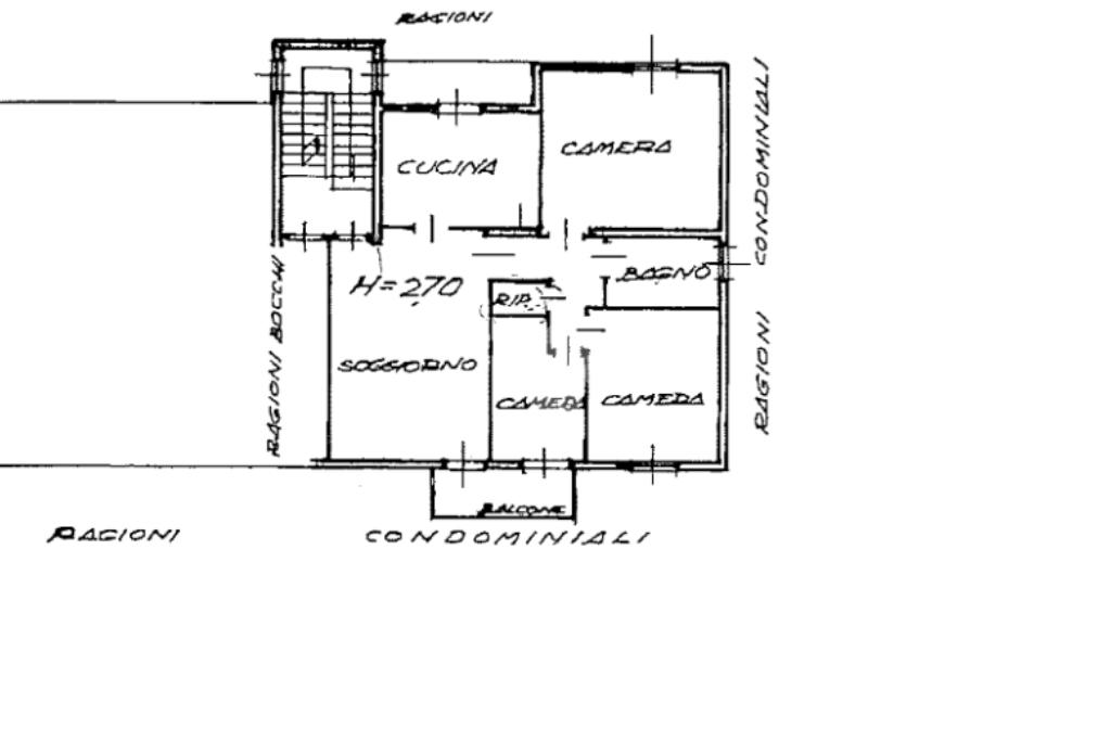
PRATICELLO- APPARTAMENTO CON TRE CAMERE DA LETTO.

Se cerchi una casa che sappia coniugare la serenità di un piccolo contesto condominiale con la comodità di ampi spazi interni, questa proposta a Praticello potrebbe essere l'occasione giusta per te.

Inserito in una palazzina di sole sei unità, l'appartamento ci accoglie al secondo e ultimo piano, regalandoci una privacy preziosa e una vista libera. Il vero protagonista qui è il sole: grazie alla tripla esposizione Sud-Est-Ovest, ogni ambiente è inondato di luce naturale in tutte le fasi della giornata.

Varcata la soglia, la zona giorno si apre con un accogliente soggiorno molto spazioso, il quale si affaccia nel proprio balcone.

Vi è la cucina separata ed abitabile, il cuore pulsante della casa dove condividere i pasti in famiglia, anch'essa dotata di proprio balconcino.

La zona notte è un raro esempio di funzionalità, infatti offre ben tre camere da letto, un taglio sempre più difficile da reperire sul mercato. Vi è una camera matrimoniale molto ampia, una seconda camera matrimoniale ed una singola, ideale per chi cerca uno studio o una stanza per i figli con uno sfogo esterno dedicato.

Un bagno finestrato con vasca ed un comodo ripostiglio completano l’appartamento.

L'immobile è pronto per essere vissuto: i pavimenti e l'impianto elettrico sono stati rinnovati nel 2006, mentre la caldaia di ultima generazione garantisce efficienza e risparmio energetico.

Completano l’oggetto la cantina ed il garage di proprietà.

PER MAGGIORI INFORMAZIONI O PER FISSARE UNA VISITA PRIVATA CHIAMACI AL 0522.902044

Mostra tutto

Nelle vicinanze

Trasporto pubblico Trasporto pubblico
Trasporto pubblico
2,9 Km
Scuole Scuole
Scuola Materna "Girasole"
400 m
Scuole
490 m
Scuola Primaria "A. Sabin"
520 m
Farmacia Farmacia
Farmacia
320 m
Supermercati Supermercati
Sigma Super Day
620 m
Negozi Negozi
Negozi
360 m
Bar Bar
Bar
160 m
Ristoranti Ristoranti
Ristoranti
260 m
IL Moretto
2,5 Km
Mostra tutto

Caratteristiche

Rif.:
61183705
Piano:
2 di 3 (Piano basso)
Box:
1
Balconi:
2
Camere da letto:
3
Arredamento:
Assente
Mostra tutto
Prezzo Prezzo
€ 172.000
Rata mutuo Rata mutuo
€ 817 / mese
Spese annue Spese annue
€ 550
Proponi il tuo prezzoProponi il tuo prezzo

Classe Energetica

F
F
F
F
F
F
F
F
F
EP globale non rinnovabile:
193.49 kW h/m² anno
EP globale rinnovabile:
193.49 kW h/m² anno
EP invernale del fabbricato:
EP estiva del fabbricato:
Anno di costruzione:
1984
Riscaldamento:
Autonomo
Tipo impianto:
A radiatori
Tipo alimentazione:
Metano

Ti interessa visionare l'immobile?

Fissa un appuntamento  Fissa un appuntamento

Richiedi informazioni

Clicca su Leggi per aprire l'informativa
* Questi campi sono obbligatori

Calcola il tuo mutuo

Semplice e senza impegno
Anticipo

( % )
Mutuo

( % )

pochi semplici passi

inserisci i tuoi dati
Questionario completato
Grazie per aver richiesto un appuntamento senza impegno con un nostro Consulente del Credito e Assicurativo.

Hai inserito correttamente tutti i dati necessari e a breve riceverai una e-mail con un link da convalidare per inviare i tuoi dati.
Affiliato
Studio Beta Srl
Via Roma, 9 42049 Sant'Ilario D'Enza (RE)

Il nostro staff


  • Romina Ornela Lonardi
    Collaboratrice

  • Piero Ruffino
    Affiliato

  • Silvia D'Anversa
    Coordinatrice

  • Pasqua Giampalmo
    Collaboratrice

  • Luigi Pilato
    Collaboratore

  • Massimiliano Ruffino
    Responsabile

  • Mauro Razzoli
    Collaboratore
Via Roma, 9 42049 Sant'Ilario D'Enza (RE)
Zona: S.Ilario - Calerno
Mostra su mappa
Orari: Da Lunedì a Venerdì: 09.00-13.00 e 15.00-20.00 Sabato: 09.00-13.00 e 15.00-18.00
Affiliato
Studio Beta Srl
Via Roma, 9 42049 Sant'Ilario D'Enza (RE)

2026 Tecnocasa Franchising S.p.A. - P. IVA 08365160152 - Via Monte Bianco 60/A 20089 Rozzano (MI). Ogni agenzia ha un proprio titolare ed è autonoma. Privacy policy | Policy utilizzo | Cookie policy