Attico in vendita

Reggio Nell'Emilia, Via De Sanctis
€ 490.000
5 locali 5 locali
150 Mq 150 Mq
2 bagni 2 bagni

Attico in vendita

Reggio Nell'Emilia, Via De Sanctis

Descrizione annuncio

REGGIO EMILIA - CANALI - ATTICO PARI AL NUOVO.

Una soluzione abitativa esclusiva, ideale per chi cerca design contemporaneo, benessere abitativo e qualità.

Attico di ultima generazione situato in una delle zone più esclusive della città. Affacciato su un piacevole contesto verde con vista aperta sul parco.

L'immobile si distingue per ampie terrazze e importanti sfoghi esterni, ideali per vivere gli spazi all'aperto in totale privacy, e per finiture ricercate che valorizzano ogni ambiente.

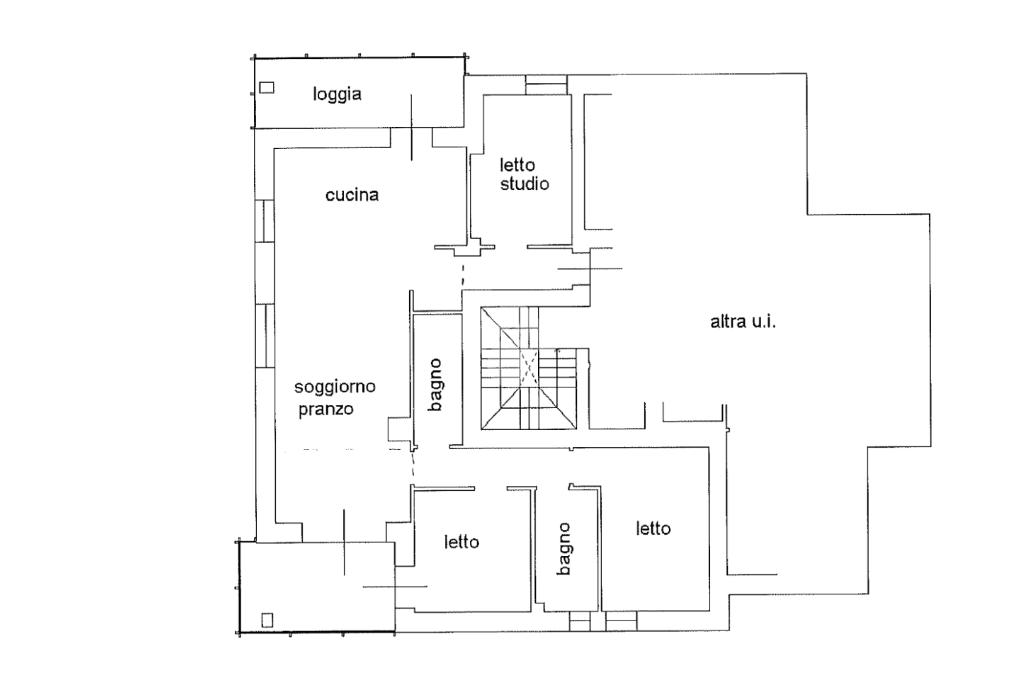
La distribuzione interna è moderna e funzionale: una zona giorno ampia e luminosa, perfetta per accogliere e vivere la casa, tre camere da letto e due bagni.

Costruito di recente, questo attico è progettato con grande attenzione sia all'efficenza energetica che alla semplicità di utilizzo da parte di chi lo vive, infatti l'ottimo comfort abitatitvo ed i suoi consumi contenuti saranno ciò che di tangibile potrete riscontrare.

Al piano terra la proprietà si completa con una comoda cantina direttamente collegata con il garage ed il vano scala condominiale, curato nello stile e nell'utilizzo giornaliero.

Nel prezzo è comprensivo una parte significativa di arredamento anch'esso di pregio a firma di una delle aziende più ricercate per i progetti di alta fascia.

PER MAGGIORI INFORMAZIONI O FISSARE UNA VISITA PRIVATA PUOI CONTATTARE IL 3457186940

Mostra tutto

Nelle vicinanze

Trasporto pubblico Trasporto pubblico
Reggio Emilia Santo Stefano
Reggio Emilia Santo Stefano
990 m
stazione di Reggio Emilia
stazione di Reggio Emilia
990 m
Piazza Del Monte
Piazza Del Monte
50 m
Coop 1
Coop 1
310 m
Reggio Viale Piave
Reggio Viale Piave
670 m
Ricariche auto elettriche Ricariche auto elettriche
Eneldrive Palazzo Vescovile
10 m
Reggio nell'Emilia Roversi | EnelX
290 m
Eneldrive Nobili
350 m
Eneldrive Piazza Vincenzo Gioberti
380 m
Eneldrive Piazza dal Pòpol Giòst
420 m
Scuole Scuole
Liceo Artistico "G. Chierici"
380 m
I.T.C. "Scaruffi-Levi-Tricolore"
390 m
Liceo Classico Statale"L. Ariosto"
430 m
Scuola dell'infanzia comunale "Diana"
450 m
Liceo scientifico statale "L. Spallanzani"
450 m
Farmacia Farmacia
Farmacia Centrale
30 m
Farmacia Comunale della via Emilia
260 m
Farmacia della Ghiara Farmacie comunali riunite
390 m
Farmacia
570 m
Farmacia Comunale Gattaglio
650 m
Ospedali Ospedali
Azienda ospedaliera Arcispedale Santa Maria Nuova
1,6 Km
Casa di cura policlinica Villa Verde
2,2 Km
Supermercati Supermercati
Coop UNO
330 m
Coop Porta Castello
530 m
Esselunga
670 m
Eurospar
880 m
Conad
900 m
Negozi Negozi
H&M
70 m
Arki
80 m
Ps Personal Shopper
140 m
Antica Bontà
150 m
Alchimista
160 m
Bar Bar
Canossa Bistrot
370 m
The Craftsman
370 m
Cafè Fontanesi
410 m
Dimmelo tu
440 m
Baretto
580 m
Ristoranti Ristoranti
Tabarin Osteria Popolare
60 m
Terme del Colesterolo
90 m
Antica Salumeria Giorgio Pancaldi
100 m
Ristorante delle Notarie
100 m
Spigolo
130 m
Mostra tutto

Caratteristiche

Rif.:
61192417
Piano:
2 di 2 con ascensore (ultimo Piano)
Box:
1
Terrazzi:
2
Camere da letto:
3
Arredamento:
Assente
Mostra tutto
Prezzo Prezzo
€ 490.000
Rata mutuo Rata mutuo
€ 2.328 / mese
Spese annue Spese annue
€ 1.000
Proponi il tuo prezzoProponi il tuo prezzo

Classe Energetica

A4
A4
A4
A4
A4
A4
A4
A4
A4
EP globale non rinnovabile:
10.00 kW h/m² anno
EP globale rinnovabile:
10.00 kW h/m² anno
EP invernale del fabbricato:
EP estiva del fabbricato:
Anno di costruzione:
2022
Riscaldamento:
Autonomo
Tipo impianto:
A pavimento
Tipo alimentazione:
Altro

Ti interessa visionare l'immobile?

Fissa un appuntamento  Fissa un appuntamento

Richiedi informazioni

Clicca su Leggi per aprire l'informativa
* Questi campi sono obbligatori

Calcola il tuo mutuo

Semplice e senza impegno
Anticipo

( % )
Mutuo

( % )

pochi semplici passi

inserisci i tuoi dati
Questionario completato
Grazie per aver richiesto un appuntamento senza impegno con un nostro Consulente del Credito e Assicurativo.

Hai inserito correttamente tutti i dati necessari e a breve riceverai una e-mail con un link da convalidare per inviare i tuoi dati.
Affiliato
Studio Beta Srl
Via Roma, 9 42049 Sant'Ilario D'Enza (RE)

Il nostro staff


  • Romina Ornela Lonardi
    Collaboratrice

  • Piero Ruffino
    Affiliato

  • Silvia D'Anversa
    Coordinatrice

  • Pasqua Giampalmo
    Collaboratrice

  • Luigi Pilato
    Collaboratore

  • Massimiliano Ruffino
    Responsabile

  • Mauro Razzoli
    Collaboratore
Via Roma, 9 42049 Sant'Ilario D'Enza (RE)
Zona: S.Ilario - Calerno
Mostra su mappa
Orari: Da Lunedì a Venerdì: 09.00-13.00 e 15.00-20.00 Sabato: 09.00-13.00 e 15.00-18.00
Affiliato
Studio Beta Srl
Via Roma, 9 42049 Sant'Ilario D'Enza (RE)

2026 Tecnocasa Franchising S.p.A. - P. IVA 08365160152 - Via Monte Bianco 60/A 20089 Rozzano (MI). Ogni agenzia ha un proprio titolare ed è autonoma. Privacy policy | Policy utilizzo | Cookie policy