Quadrilocale in vendita

Sant'Ilario D'Enza, viale Podgora
€ 150.000
4 locali 4 locali
125 Mq 125 Mq
1 bagno 1 bagno

Quadrilocale in vendita

Sant'Ilario D'Enza, viale Podgora

Descrizione annuncio

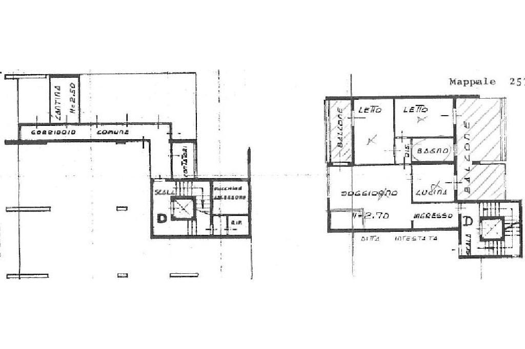
SANT'ILARIO D'ENZA - AMPIO QUADRILOCALE CON BASSI SERVIZI.

In zona vicinissima al centro del paese proponiamo in vendita un ampio quadrilocale posto al quarto ed ultimo piano di un contesto servito da ascensore.

L'immobile presenta ambienti molto ampi, tipici dell'epoca in cui è stato edificato, inoltre gode di una doppia esposizione parallela, ideale per luminosità ed areazione.

E' composto da un ingresso che conduce ad un luminoso soggiorno, il quale ha sfogo diretto nel balcone.

La cucina è abitabile ed affaccia nel terrazzo, spazio assolutamente vivibile da poter attrezzare per pranzi/cene all'aperto.

La zona notte, separata da un disimpegno, include due ampie camere da letto, entrambe con accesso al balcone e ad al terrazzo, vi è infine il bagno finestrato e con vasca.

Completano la proprietà un box auto privato ed una cantina.

Questa soluzione rappresenta un'ottima opportunità per chi cerca un'abitazione confortevole e ben servita a Sant'Ilario d'Enza.

PER MAGGIORI INFORMAZIONI O PER FISSARE UNA VISITA PRIVATA CHIAMACI AL 0522.902044

Mostra tutto

Nelle vicinanze

Trasporto pubblico Trasporto pubblico
Sant'Ilario d'Enza
Sant'Ilario d'Enza
530 m
Fermata Edicola
Fermata Edicola
100 m
Fermata Forum
Fermata Forum
160 m
Ricariche auto elettriche Ricariche auto elettriche
EnelX EVA+ Comune Di Sant'Ilario D'Enza
220 m
Sant'Ilario Gramsci | Enelx
230 m
CONAD SUPERSTORE SANT'ILARIO | ENELX
1,4 Km
Scuole Scuole
Ipsia Galvani
180 m
Scuola secondaria di primo grado "Leonardo da Vinci"
200 m
Scuola Elementare "Carlo Collodi"
560 m
Area Scolastica
700 m
Scuole
1,2 Km
Farmacia Farmacia
Febbranti Ivano e Paolo
50 m
Farmacia comunale
190 m
Farmacia Ziroldi
1,2 Km
Parafarmacia Conad
1,4 Km
Supermercati Supermercati
Famila
230 m
COOP
590 m
Supermercato Conad
1,2 Km
Conad
1,4 Km
Supermercati
2,5 Km
Negozi Negozi
Negozi
400 m
Bar Bar
Bar Centrale
40 m
Bar
150 m
Ristoranti Ristoranti
Prater
80 m
Ristoranti
600 m
Il Ghiottone
1,1 Km
Mostra tutto

Caratteristiche

Rif.:
60929835
Piano:
4 di 4 con ascensore (ultimo Piano)
Box:
1
Balconi:
1
Terrazzi:
1
Camere da letto:
2
Mostra tutto
Prezzo Prezzo
€ 150.000
Rata mutuo Rata mutuo
€ 687 / mese
Spese annue Spese annue
€ 900
Proponi il tuo prezzoProponi il tuo prezzo

Classe Energetica

G
G
G
G
G
G
G
G
G
EP globale non rinnovabile:
230.00 kW h/m² anno
EP globale rinnovabile:
230.00 kW h/m² anno
EP invernale del fabbricato:
EP estiva del fabbricato:
Anno di costruzione:
1983
Riscaldamento:
Autonomo
Tipo impianto:
A radiatori
Tipo alimentazione:
Metano

Ti interessa visionare l'immobile?

Fissa un appuntamento  Fissa un appuntamento

Richiedi informazioni

* Questi campi sono obbligatori

Calcola il tuo mutuo

Semplice e senza impegno
Anticipo

( % )
Mutuo

( % )

pochi semplici passi

inserisci i tuoi dati
Questionario completato
Grazie per aver richiesto un appuntamento senza impegno con un nostro Consulente del Credito e Assicurativo.

Hai inserito correttamente tutti i dati necessari e a breve riceverai una e-mail con un link da convalidare per inviare i tuoi dati.
Affiliato
Studio Beta Srl
Via Roma, 9 42049 Sant'Ilario D'Enza (RE)

Il nostro staff


  • Romina Ornela Lonardi
    Collaboratrice

  • Piero Ruffino
    Affiliato

  • Silvia D'Anversa
    Coordinatrice

  • Pasqua Giampalmo
    Collaboratrice

  • Luigi Pilato
    Collaboratore

  • Massimiliano Ruffino
    Collaboratore

  • Mauro Razzoli
    Collaboratore
Via Roma, 9 42049 Sant'Ilario D'Enza (RE)
Zona: S.Ilario - Calerno
Mostra su mappa
Orari: Da Lunedì a Venerdì: 09.00-13.00 e 15.00-20.00 Sabato: 09.00-13.00 e 15.00-18.00
Affiliato
Studio Beta Srl
Via Roma, 9 42049 Sant'Ilario D'Enza (RE)

2025 Tecnocasa Franchising S.p.A. - P. IVA 08365160152 - Via Monte Bianco 60/A 20089 Rozzano (MI). Ogni agenzia ha un proprio titolare ed è autonoma. Privacy policy | Policy utilizzo | Cookie policy