Villa a schiera in vendita

Sant'Ilario D'Enza, via Fornace Baistrocchi
€ 365.000
6 locali 6 locali
250 Mq 250 Mq
3 bagni 3 bagni

Villa a schiera in vendita

Sant'Ilario D'Enza, via Fornace Baistrocchi

Descrizione annuncio

SANT'ILARIO- VILLETTA A SCHIERA RISTRUTTURATA CON AMPI SPAZI.

Siamo in zona Fornace, posizione comoda ai servizi che il paese offre ma allo stesso tempo più tranquilla e vivibile, a due passi da aree verdi attrezzato.

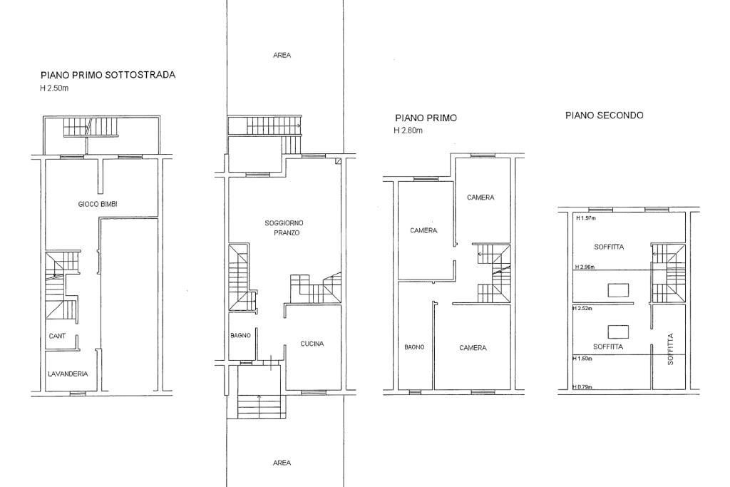
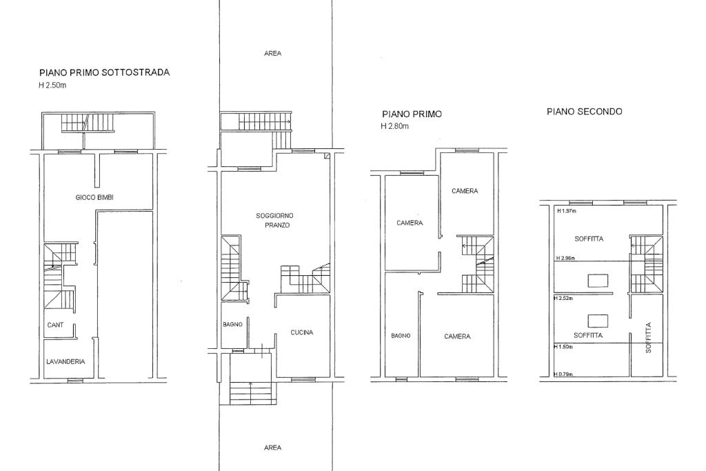
Proponiamo una soluzione semi indipendente, una villetta a schiera su più livelli RISTRUTTURATA interamente nel 2009 e perfettamente manutenuta negli anni presentandosi in OTTIME condizioni. Una soluzione molto bella ed interessante completa anche di giardino privato sul retro, spazio quindi da vivere in assoluta privacy.

L'ingresso è ovviamente autonomo, una loggia/porticato, al piano rialzato, ci accompagna nella zona living dove troviamo uno spazio molto ampio e accogliente, un soggiorno doppio ed una cucina separata ed abitabile. A servizio della zona giorno è presente il primo bagnetto di servizio, finestrato.

Salendo al primo piano troviamo la zona notte, ci sono ben tre camere da letto, una matrimoniale, una camera doppia ed una singola, tutte servite da un bagno finestrato, dotato sia di doccia che di vasca idromassaggio.

Salendo troviamo il sottotetto sfruttabile, un ambiente pluriuso che può essere utilizzato come ambiente ospiti o come meglio si crede, un ambiente molto caldo e accogliente con soffitto in legno sbiancato, parquet e finiture curate.

Non mancano i bassi servizi, posti al piano seminterrato, quali taverna, cantina, un bagno/lavanderia ed un garage doppio in lunghezza.

La casa è pronta per essere abitata, non necessita di nessun intervento, i lavori son stati fatti con attenzione, inoltre recentemente sono stati installati pannelli fotovoltaici da 3 kWh con batterie di accumulo, un valore aggiunto che riduce i consumi e porta l’immobile verso un’abitabilità più sostenibile.

PER MAGGIORI INFORMAZIONI O PER FISSARE UNA VISITA PRIVATA CHIAMACI AL 0522.902044

Mostra tutto

Nelle vicinanze

Trasporto pubblico Trasporto pubblico
Sant'Ilario d'Enza
Sant'Ilario d'Enza
600 m
Fermata Fiastri
Fermata Fiastri
170 m
Fermata Edicola
Fermata Edicola
280 m
Ricariche auto elettriche Ricariche auto elettriche
EnelX EVA+ Comune Di Sant'Ilario D'Enza
210 m
Sant'Ilario Gramsci | Enelx
470 m
CONAD SUPERSTORE SANT'ILARIO | ENELX
1,4 Km
Scuole Scuole
Scuola secondaria di primo grado "Leonardo da Vinci"
520 m
Ipsia Galvani
560 m
Scuola Elementare "Carlo Collodi"
810 m
Area Scolastica
1,1 Km
Scuole
1,1 Km
Farmacia Farmacia
Farmacia comunale
230 m
Febbranti Ivano e Paolo
340 m
Farmacia Ziroldi
1,3 Km
Parafarmacia Conad
1,5 Km
Farmacia
3,0 Km
Supermercati Supermercati
COOP
250 m
Famila
570 m
Supermercato Conad
1,2 Km
Conad
1,5 Km
Supermercati
2,1 Km
Negozi Negozi
Negozi
300 m
Bar Bar
Bar Centrale
350 m
Bar
500 m
Ristoranti Ristoranti
Ristoranti
240 m
Prater
300 m
Il Ghiottone
1,2 Km
Mostra tutto

Caratteristiche

Rif.:
61147749
Piano:
Su più livelli di 2
Totale piani:
2
Box:
1
Balconi:
1
Camere da letto:
3
Mostra tutto
Prezzo Prezzo
€ 365.000
Rata mutuo Rata mutuo
€ 1.721 / mese
Spese annue Spese annue
€ 0
Proponi il tuo prezzoProponi il tuo prezzo

Classe Energetica

E
E
E
E
E
E
E
E
E
EP globale non rinnovabile:
154.35 kW h/m² anno
EP globale rinnovabile:
154.35 kW h/m² anno
EP invernale del fabbricato:
EP estiva del fabbricato:
Anno di costruzione:
1981
Riscaldamento:
Autonomo
Tipo impianto:
A radiatori
Tipo alimentazione:
Metano

Ti interessa visionare l'immobile?

Fissa un appuntamento  Fissa un appuntamento

Richiedi informazioni

Clicca su Leggi per aprire l'informativa
* Questi campi sono obbligatori

Calcola il tuo mutuo

Semplice e senza impegno
Anticipo

( % )
Mutuo

( % )

pochi semplici passi

inserisci i tuoi dati
Questionario completato
Grazie per aver richiesto un appuntamento senza impegno con un nostro Consulente del Credito e Assicurativo.

Hai inserito correttamente tutti i dati necessari e a breve riceverai una e-mail con un link da convalidare per inviare i tuoi dati.
Affiliato
Studio Beta Srl
Via Roma, 9 42049 Sant'Ilario D'Enza (RE)

Il nostro staff


  • Romina Ornela Lonardi
    Collaboratrice

  • Piero Ruffino
    Affiliato

  • Silvia D'Anversa
    Coordinatrice

  • Pasqua Giampalmo
    Collaboratrice

  • Luigi Pilato
    Collaboratore

  • Massimiliano Ruffino
    Collaboratore

  • Mauro Razzoli
    Collaboratore
Via Roma, 9 42049 Sant'Ilario D'Enza (RE)
Zona: S.Ilario - Calerno
Mostra su mappa
Orari: Da Lunedì a Venerdì: 09.00-13.00 e 15.00-20.00 Sabato: 09.00-13.00 e 15.00-18.00
Affiliato
Studio Beta Srl
Via Roma, 9 42049 Sant'Ilario D'Enza (RE)

2025 Tecnocasa Franchising S.p.A. - P. IVA 08365160152 - Via Monte Bianco 60/A 20089 Rozzano (MI). Ogni agenzia ha un proprio titolare ed è autonoma. Privacy policy | Policy utilizzo | Cookie policy